What Is A 2055 Appraisal Form are a flexible and convenient service for remaining arranged and efficient. From calendars and planners to to-do lists and worksheets, these templates deal with different individual and professional requirements. They are adjustable, allowing you to tailor them to your preferences and make preparing more effective. Whether you need a weekly schedule, spending plan tracker, or meal planner, you'll find a design that suits your design and function.
Downloading and printing these templates is easy and accessible. Use them in your home, in the office, or perhaps on the go to improve your daily tasks. Save effort and time with ready-to-use layouts that streamline your regimen while adding a touch of creativity to your company. Check out a large range of What Is A 2055 Appraisal Form today and take the initial step toward a more orderly and efficient lifestyle!
What Is A 2055 Appraisal Form

What Is A 2055 Appraisal Form
ESPN has the full 2024 25 Kentucky Wildcats Regular Season NCAAM schedule Includes game times TV listings and ticket information for all Wildcats games 2024-25 Kentucky Men's Basketball Schedule ✨with tip times and TV designations ✨ - https://ukathletics.com/sports/mbball/schedule/
2024 25 Women s Basketball Schedule UK Athletics

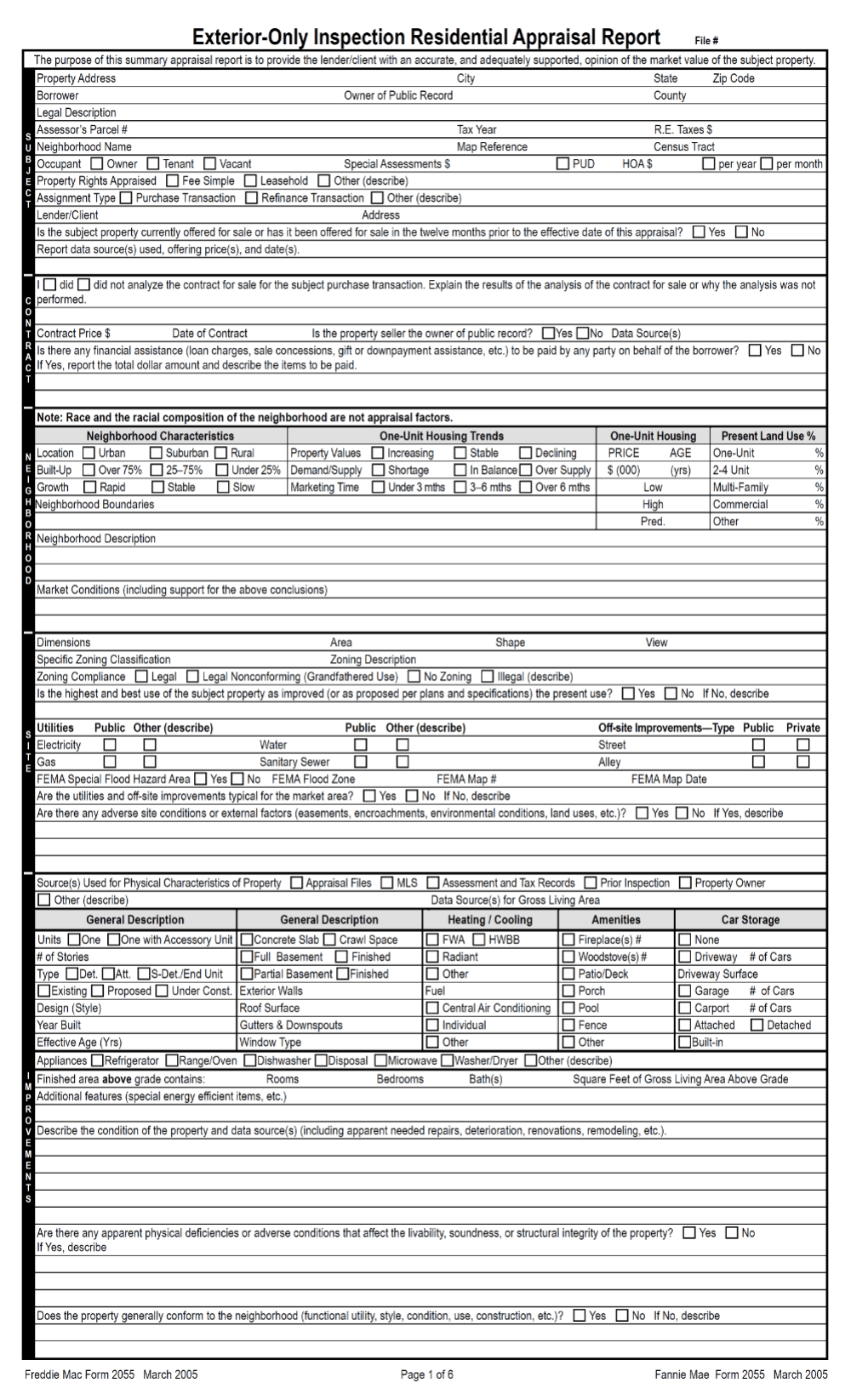
2055 Appraisal Form Exterior Only Single Family Residence Realvals
What Is A 2055 Appraisal FormESPN has the full 2024-25 Kentucky Wildcats Regular Season NCAAW schedule. Includes game times, TV listings and ticket information for all Wildcats games. We now have the Kentucky Wildcats complete schedule for Year 1 of the Mark Pope era SEC play begins for the Cats on January 4th at home vs Florida
Printable 2024 Kentucky Wildcats basketball schedule. Includes opponents, times, TV listing for games and a space to write in game results. What Is Appraisal Form 442 Design Talk What Is Appraisal Form 442 Design Talk
2024 25 Kentucky Men s Basketball Schedule with tip times and TV

2055 Appraisal Form Exterior Only Single Family Residence Realvals
2024 25 Kentucky Basketball schedule times and TV channels The complete 2024 25 Kentucky Basketball schedule By Jason Marcum October 10 Annual Performance Appraisal Form Sle For Employees Infoupdate
You can get a printable schedule via the link below It includes a full list of dates and opponents for the 2024 25 season Employee Performance Appraisal Form Excel Template And Google Sheets How To Calculate Kpi Performance In Excel

Free Column Design Templates For Google Sheets And Microsoft Excel

Free Employee Movement Templates For Google Sheets And Microsoft Excel

Free Employee Leave Planner Templates For Google Sheets And Microsoft

Free Blue Product Performance Templates For Google Sheets And Microsoft

Appraisal Education Inspirational Education

1004 Appraisal Form Uniform Residential Appraisal Report URAR
Manufactured Home Appraisal PDF Form FormsPal

Annual Performance Appraisal Form Sle For Employees Infoupdate

Free Stock Requisition Form Template To Edit Online

2055 Appraisal Fill Out Sign Online DocHub