How To Write School Inspection Report Pdf are a versatile and practical option for remaining organized and productive. From calendars and planners to to-do lists and worksheets, these templates deal with numerous personal and professional requirements. They are adjustable, enabling you to customize them to your choices and make preparing more effective. Whether you need a weekly schedule, budget tracker, or meal planner, you'll find a style that fits your design and purpose.
Downloading and printing these templates is simple and available. Utilize them at home, in the workplace, or even on the go to streamline your everyday jobs. Save time and effort with ready-to-use layouts that simplify your routine while adding a touch of imagination to your organization. Explore a wide variety of How To Write School Inspection Report Pdf today and take the primary step towards a more orderly and productive way of life!
How To Write School Inspection Report Pdf
How To Write School Inspection Report Pdf
Games Puzzles Crossword Our Top Games Daily CrosswordSudokuMini Crossword GameMini CrosswordImpossible SudokuWordsearch Game The Los Angeles Times Sunday Crossword Puzzle offers a broad range of vocabulary and cultural clues, along with a sprinkling of humor and wordplay.
LA Times Daily Crossword Free Online Game Chicago Tribune

First Page Of Project Cover Page For Project Front Page Design Page
How To Write School Inspection Report PdfComplete the crossword by filling in a word that fits each clue. ... 66 Common childhood fear, examples of which may jump out at you four times in this puzzle? We break down under each month a daily list of LA Times crosswords that you can select to easily print with a standard printer in a easy to read PDF format
One of the most entertaining puzzles around, the Los Angeles Times Daily crossword will test your skills. Building Assessment Checklist Free Printable Vehicle Inspection Form FREE DOWNLOAD Inspection
LA Times Sunday Crossword capitalpress

Formal Inspection Report Template In Word PDF Google Docs Download
The Los Angeles Times Daily Crossword Puzzle offers a broad range of vocabulary and cultural clues along with a sprinkling of humor and wordplay Should I Put My GPA On My Resume Forage
You may need to click once in the crossword grid to activate the puzzle tap if it is a touch device Complete the crossword by filling in a word that fits HVAC Inspection Checklist For Contractors Free Template School Report Example Free Report Examples

Vehicle Inspection Checklist

Vehicle Inspection Report Template Prntbl concejomunicipaldechinu gov co

Fully Automated Teacher s Attendance Register Excel Template MSOfficeGeek
Inspection Report PDF Occupational Safety And Health Safety
NFE 2923 Q RE 003 A Coating Inspection Report PDF

Academic Report Template Free Report Examples

Absent Note
Should I Put My GPA On My Resume Forage
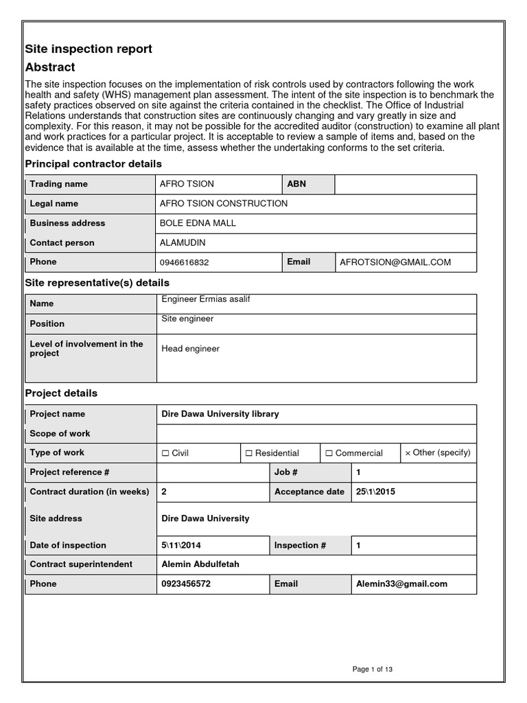
Site Inspection Report PDF Occupational Safety And Health Safety

How To Write An Essay About School Uniforms School Uniforms Nifty